盛泰作品
建筑设计 岩土工程 风景园林 工程咨询 城乡规划 市政设计 装饰设计 数字智能 乡村振兴

新型校园:打破刻板印象,释放少年童真

项目名称:绵阳高新区火炬第一小学

方案、施工图设计四川盛泰建筑勘察设计有限公司绵阳分公司

内装设计四川艾迪建筑设计有限公司

建设规模总建筑面积:30120.70㎡(36班)

地点四川绵阳

设计:2021

 

项目总监唐巧玲

方案团队张晓明、谢龙杰、王安业、王佳培、江金生、郑勇、余潇

施工图设计鲜勇、何雨、江龙

结构设计刘林、郭小进、陈伟、杜涛

机电设计段美玉、郭垚、郭庆

 

学校建筑作为青少年儿童社会活动发生的主要场所,本身无时无刻都在发生着潜移默化的教育

正如英国前首相丘吉尔所言:

“我们塑造了建筑物,而后建筑物反过来开始塑造我们”



传统的教育是标准化的应试教育,关注的重点是:考纲、考点、标准答案;育人方式停留在:记忆、刷题、复习备考;最终的目的是:得高分、争排名、接受选拔。现代教育强调发展学生自主探索.想象与互助沟通能力。 校园的建设应该主动的适应新的模式,为构建未来的教育而行动。

 

小学教育空间经历了从单纯的功能性空间向复合多元的体验性空间转变的发展历程,我们研究了传统教学建筑与新近较为开放式的北京四中等建筑形式,突破建筑限制,结合深圳红岭小学的灵活建筑形态,最终采用拼图式的教学单元设计,打通孤立的教室创造团组式学习的场所,灵活的空间可依据教与学的需求“变形”,打开的空间让孩子们释放压力,也为教学模式改革提供了无限的可能。并且结合不同年龄层学生的功能需求对其进行解构重组,提供新的建筑形态承载多元空间形态。

 

为了塑造一个具有童趣的学习乐园,我们从儿童启蒙教育中的拼图游戏中汲取灵感。

 

从传统较单调的行列式布局转变为主张功能复合,符合未来教学模式的教学组团布局。每个教学组团由四个普通教室、两个大小不同的兴趣教室及办公等教学辅助功能组成,兴趣教室与普通教室可平层或同一栋楼内就近使用,减少走班制教学 课间换教室的行走距离。整个教学组团空间,充满了活力、就像细胞一样,会呼吸,能流动,有生命力。

 

经过实例调研我们发现,对于孩子们在学校日常的休息活动时间,课间的十分钟是非常宝贵和重要的。在短暂的休息期间,孩子们往往倾向于在自己班 级所在的楼层内玩耍,不常会下楼到庭院或操场进行活动。因此,在教学组团设计中,我们设置了局部放大的多用途交流讨论空间,为孩子们提供更多不同形式的体验空间。同时每层的挑檐也为普通教室提供了水平遮阳,起到防止眩光的作用。

 


项目主要含三栋教学楼、一栋食堂和一栋综合楼,均由平台相连接;建筑风格以现代为主,继承传统文脉空间的同时,又融入现代设计语言,结合平面功能塑造出简洁大方的建筑形体,为学生提供一个轻松舒适的学习氛围。用现代设计语汇来表现教育建筑的内在品质,将形体基本模块通过构成、分割及精心组织,表现建筑的逻辑性,表达青少年学生的活泼性与创造性。

 

设计分行政、教室及操场三大版块。以行政板块为界限,将校园东西分区,使得教室与体育场能动静分区,减少干扰。西侧设有单独的出入口,使得运动区域可相对独立,可错时段面向社会开放。

 

设计充分利用了垂直向的空间范围,建构层叠交错的立体复合空间,创造出曲线边界的“山谷”庭院校园。在“公园”的一层,有各类公共兴趣教室,通过落地窗就可以看到美丽的庭院风景。对着绿树写生,对着小山起舞,用这样诗情画意的校园一直滋养孩子的童年。

 这里有蓬勃生长的大树,有蜿蜒曲折的坡道,有小剧场、篮球场,有开放的社团活动空间,“文艺庭院+运动庭院”让学校的地面和地下变成绿树红花点缀,动静相宜的儿童公园。

 

 建筑二层设计为空中活动平台。连接着各个教育组团。这样的校园动线为喜欢探索与挑战的孩子提供充分的行走路线,他们每天都可以走不同的路,发现不一样的景致。当孩子们在重构的课程与重构的建筑中开展感性活动,接受教育,这种生活构成了他的成长环境,影响他们一生的发展,校园就是孩子的乐园。

 

校园的每一个院落都拥有不同的设计元素,园林化设计营造出雅致的学习氛围,创造一个可持续发展的生态环境。通过对建筑空间、文化符号、活跃元素、生态景观进行系统整合,学校的环境就如同在其中成长的每一个学生一样,向阳而生。

 

在日本、美国等西方国家的学校,学生的社团生活会始终贯穿孩子整个学习生涯;学生们带着同样的兴趣爱好去了解、学习一件事情,使孩子在成长过程中寻找不限可能与快乐;

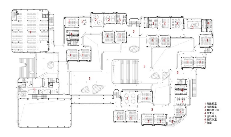
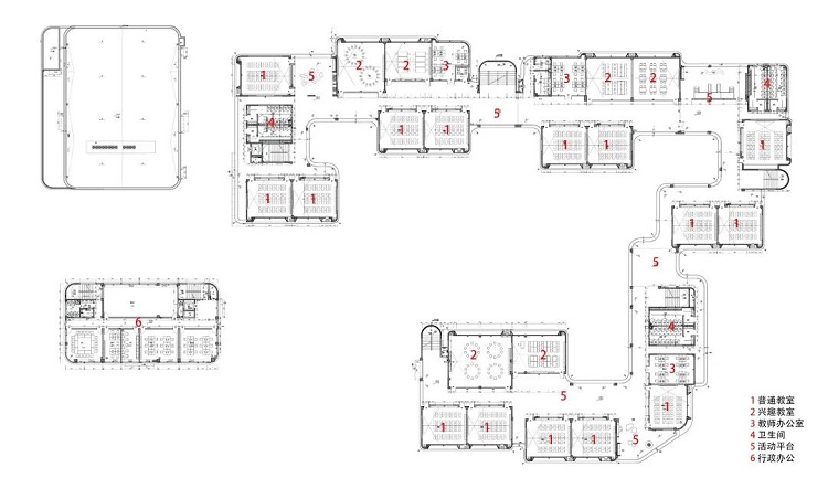
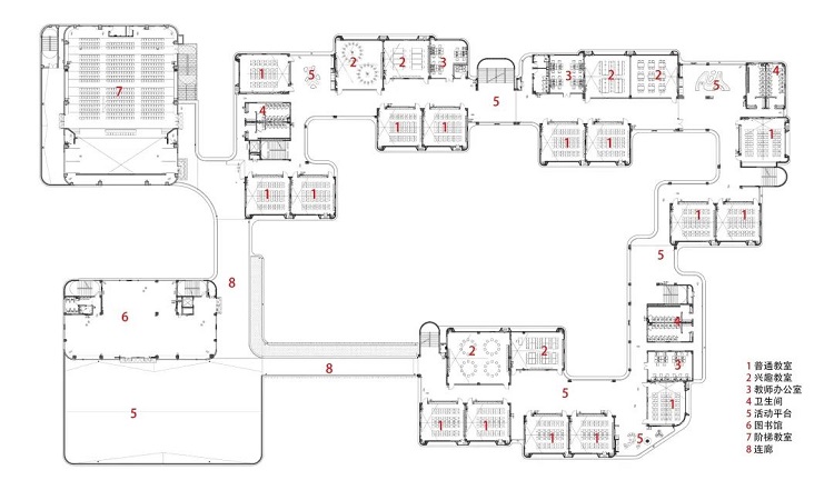
功能分布

1、教学组团分为三个体量,组团内分别布置普通教室、兴趣教室、 备课办公、教学辅助用房等;教学组团利用各平台层和交通空间串联各体量。

2、教学辅助用房布置在一层,与庭院形成活跃的首层活动空间。

3、体育馆与综合楼布置于入口一侧,综合楼内包含图书馆、科技馆、办公楼;食堂布置于校园西北角一二楼部分,报告厅布置在三楼。

 



“有一个孩子每天向前走去, 他看见最初的东西,那东西就变成了他的一部分”

——美国诗人惠特曼



Copyright by 2006-2017 四川盛泰建筑勘察设计有限公司 版权所有 蜀ICP备13011551号-1 成都网站建设:今网科技